Nonantola Via 2 Giugno
Appartamento
Foto Formato Reale
ATTICO
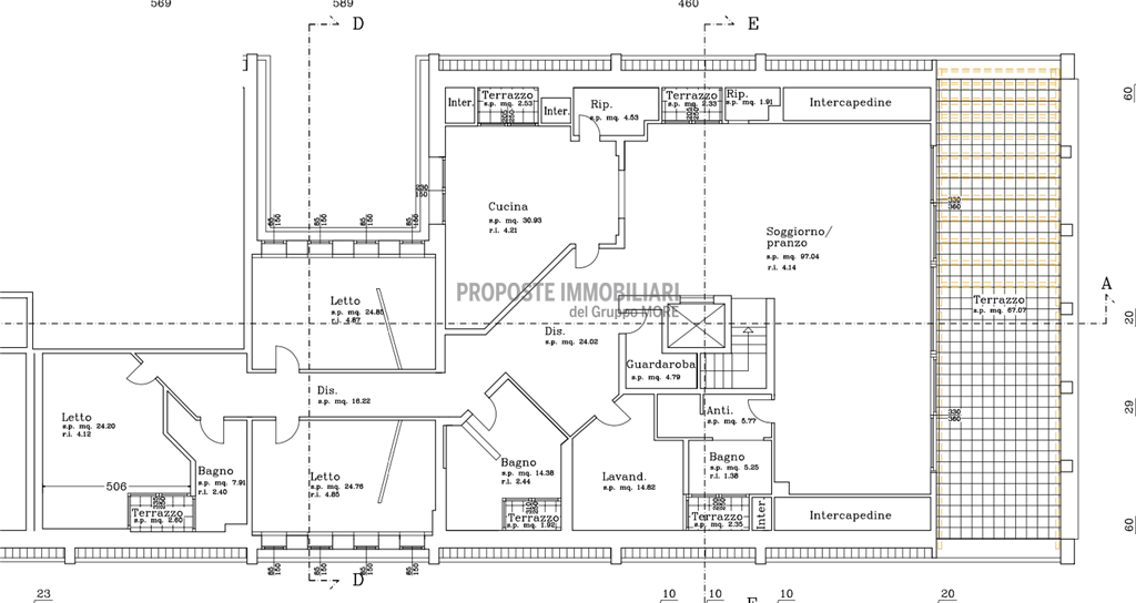
VR6966 NONANTOLA zona centrale esclusivo Attico di 320 mq in palazzina di recente realizzazione dotato di ascensore con combinazione con arrivo diretto all'interno; l'attico si compone di ingresso con guardaroba, salone di 100 mq prospiciente il terrazzo arredato di 70 mq , cucina di 30 mq con balcone , bagno giorno con balcone ampio disimpegno con accesso a lavanderia e al corridoio del reparto notte con 3 camere matrimoniali di 25 mq ognuna tutte dotate di cabina armadio, 2 sale da bagno a servizio della zona notte. Immobile curato con finiture design e rifinito elegantemente nei dettagli. Completa la proprietà un garage doppio di 30 mq . Classe VA
Caratteristiche
Spese cond.li
€ 3.500 / anno
Orientamento
Est Sud Ovest
Tipo Riscaldam.
Caldaia a Condensazione
Infissi
Legno Doppio Vetro
Accessori
Aria Condizionata, Ascensore, Bagno Handicap, Doppi Vetri, Impianto Satellitare, Lavanderia, Porta Blindata, Video Citofono
Planimetrie
Planimetria

Planimetria

Posizione su mappa
Via 2 Giugno , Nonantola (MO)