Maranello ad.ze via per Castelnuovo
Villa
Foto Formato Reale
Golf Club - Villa Bifamiliare
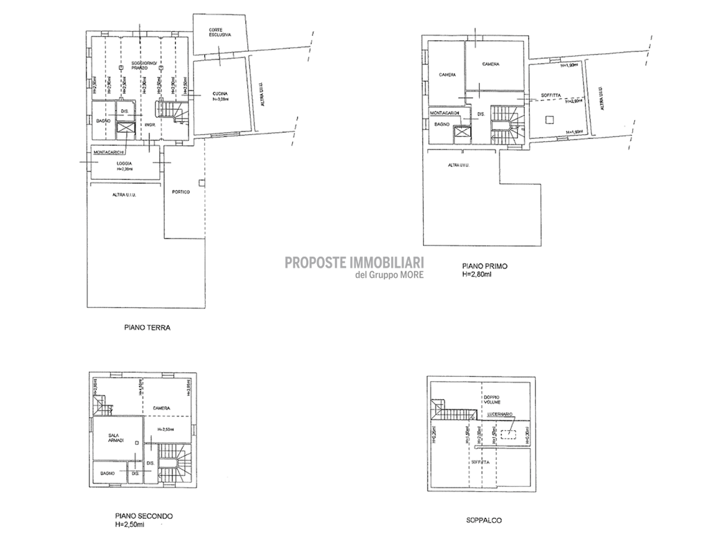
VD4171 Golf Club libera Villa bifamiliare libera subito con ampio giardino privato. Abitazione principale disposta su tre piani con ingresso, ampio salone con zona pranzo e soggiorno, cucina molto grande con caminetto centrale per la cottura a brace, bagno e ascensore al piano terra, disimpegno, tre ampie camere e bagno al piano primo, due camere, bagno e soppalco con sauna al piano secondo. Appartamento con ingresso indipendente composto da soggiorno-pranzo, cucinotto, disimpegno, due camere e bagno. Completano la proprietà un fabbricato ad uso ricovero attrezzature di 40 mq posto nel giardino privato, due ampi garage di 25 mq cadauno e quattro posti auto coperti. Contesto molto esclusivo con accesso diretto al campo di gioco.
Caratteristiche
Spese cond.li
€ 6.000 / anno
Orientamento
Nord Ovest Sud Est
Tipo Riscaldam.
Caldaia a Condensazione
Infissi
Legno Doppio Vetro
Pavim. Giorno
Gres Porcellanato
Pavim. Notte
Gres Porcellanato
Pavim. Cucina
Gres Porcellanato
Pavim. Bagno
Gres Porcellanato
Accesso Disabili
Nessuna Barriera
Accessori
Antifurto, Aria Condizionata, Ascensore, Camino, Cancello Elettrico, Doppi Vetri, Doppio Ingresso, Impianto Satellitare, Lavanderia, Parco Condominiale, Porta Blindata, Ripostiglio, Video Citofono, Zanzariere
Planimetrie
PLANIMETRIA

Posizione su mappa
ad.ze via per Castelnuovo , Maranello (MO)