Campogalliano
Tenuta
Foto Formato Reale
Intero Borgo con 18.000 mq di terreno
VX2605 - Vicino a CAMPOGALLIANO in aperta campagna, vendesi intero BORGO, con 3 fabbricati e 18.000 mq, di terreno ben curato, piantumato e già recintato. Ideale per chi decide di vivere nel verde senza rinunciare alla comodità di raggiungere in pochi minuti Modena, Rubiera e Carpi, l’autostrada del Brennero e le principali vie di comunicazione, cosi composto:
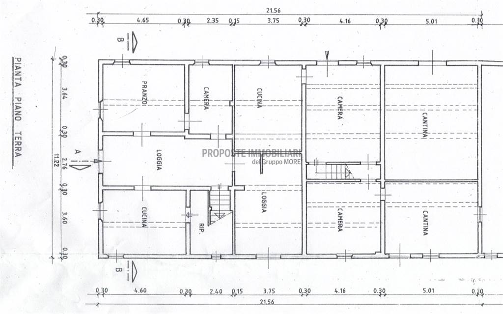
[Fabbricato A] casa mono-familiare di 300 mq comm.li disposta su 3 piani da 100 mq cadauno, già ristrutturata e abitabile fin da subito, con possibilità di ricavare una soluzione abitativa al piano terra per genitori anziani.
[Fabbricato B] edificio di 720 mq composto da 3 piani da 240 mq l’uno, completamente da ristrutturare, nel quale si possono ricavare 2/3 unità abitative.
[Fabbricato C] area con pilastri che delimitano l’area edificabile dove ci si può costruire una edifico indipendente su 2 piani (garage / magazzino, / ufficio / studio / taverna).
[Fabbricato D] garage / piccola dependance / magazzino completamente ristrutturato con 2 bagni.
LA VENDITA può essere effettuata IN BLOCCO al prezzo totale di euro 790.000 trattabili.
Oppure SEPARATAMENTE con questa suddivisione:
[Fabbricato A] € 430.000 compreso terreno pertinenziale di circa 1100 mq
[Fabbricato B] € 140.000 + terreno pertinenziale della dimensione desiderata, (in quanto ancora da frazionare) a un prezzo da concordare.
[Fabbricato C] € 30.000 + terreno pertinenziale (da abbinare obbligatoriamente al fabbricato A o B).
[Fabbricato D] € 70.000 + terreno pertinenziale (disponibile solo se collegato ad altro fabbricato! o dopo aver venduto i 2 fabbricati).
Caratteristiche
Classe
Non classificabile
Planimetrie
Edificio A - Abitazione Principale

Edificio B - 720 mq da ristrutturare

Edificio B - 720 mq da ristrutturare

Edificio B - 720 mq da ristrutturare

Area complessiva con edifici A, B, C ,D
